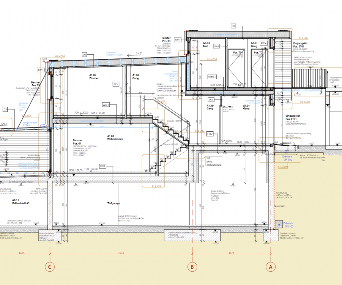
Vom Land geförderter Geschosswohnbau in Holz, errichtet von einer gemeinnützigen Genossenschaft. 18 Wohneinheiten mit Tiefgarage für 36 PKW. Die drei Baukörper liegen an einem Hanggrundstück in Kumberg in kurzer Entfernung zum Ortszentrum. Die Anlage besteht hauptsächlich aus sogenannten Splitlevel Vierzimmerwohnungen mit zwei unterschiedlichen hohen Geschossversätzen. Geschossdecken und Decken bestehen aus Brettsperrholzelementen, die Aussenwände aus Ständerwandkonstruktionen. Bei den Fassaden wechseln sich Lärchenholzschalungen und Wärmedämmverbundfassaden ab.




Geförderter Holzwohnbau Kumberg








Architekturbüro
2003 gegründet umfasst unsere Arbeit das gesamte Spektrum der Architektur. Egal ob Neubau, Sanierung oder Umbau. In unserem Portfolio befinden sich Wohngebäude, Historische Bauten, Gewerbebauten, Bildungsbauten und Spezialobjekte.

Jede Position und
Haltung bedarf einer
kritischen
Hinterfragung - auch
unsere eigene.
Weiterentwicklung
kann Fortschritt
bedeuten. Architektur
ist immer eine
Reaktion auf
bestehende
Verhältnisse.
Wie wir arbeiten
Achtsamer Umgang mit allen Ressourcen, Flächen, Materialien und Gütern ist Grundlage unseres Denkens. Darauf aufbauend entstehen räumlich und sozial vielschichtige, vernetzte Gebäude.

Unser Team
Die Menschen
hinter den Projekten


Guido Seeger
Diplom 1995 Technische Universität Stuttgart
Ziviltechnikerprüfung 1999

Wolfgang Schneider
Diplom Technische Universität Graz 2001
Ziviltechnikerprüfung 2013

Gernot Schilcher
Diplom Technische Universität Graz 2014

Sarah Ischka-Deutsch
Diplom Technische Universität Stuttgart 2012

Timon Oswald
Bachelor of Science Technische Universität Graz 2021

Büro Team
Impressum
für den Inhalt verantwortlich:
architekturbüro seeger
goethestrasse 19
8010 Graz
+43 (0) 316 22 55 84
office@arch-seeger.com
Design: Mathias Kaiser
Code: Nice Department
Datenschutz
Entsprechend der Datenschutz Grundverordnung (DS-GVO), möchten wir unserer Informationspflicht bei Erhebung von personenbezogenen Daten nachkommen und Sie transparent über Art, Umfang und Zweck der von uns erhobenen personenbezogenen Daten im Rahmen der Allgemeinen Geschäftstätigkeit und der Website informieren und Sie über die Ihnen zustehenden Rechte aufklären.
Google Maps
Diese Webseite verwendet das Produkt Google Maps von Google Inc. Durch Nutzung dieser Webseite erklären Sie sich mit der Erfassung, Bearbeitung sowie Nutzung der automatisiert erhobenen Daten durch Google Inc, deren Vertreter sowie Dritter einverstanden. Die Nutzungsbedingungen von Google Maps finden sie unter "Nutzungsbedingungen von Google Maps"
Weitergabe von Daten an Dritte:
Innerhalb unseres Unternehmens erhalten nur die Personen und Stellen Ihre personenbezogenen Daten, die diese zur Erfüllung unserer vertraglichen und gesetzlichen Pflichten benötigen.
Wir übermitteln Daten an Dritte, sofern wir diese zur Erfüllung einer vertraglichen Pflicht benötigen, darüber hinaus übermitteln wir Daten an Dritte, wenn dazu eine rechtliche Verpflichtung besteht. Das ist dann der Fall, wenn staatliche Einrichtungen (z.B. Behörden und Ämter) schriftlich um Auskunft ersuchen, eine richterliche Verfügung vorliegt oder eine Rechtsgrundlage die Weitergabe erlaubt, darüber hinaus werden Daten nicht an Dritte übermittelt.
Eine Übermittlung von personenbezogenen Daten in sogenannte Drittstaaten außerhalb des EU/EWR-Raumes findet nicht statt.
Wir verarbeiten und speichern Ihre personenbezogenen Daten, solange es für die Erfüllung unserer vertraglichen Pflichten erforderlich ist oder wie es die vom Gesetzgeber vorgesehenen Aufbewahrungsfristen vorsehen.
Sind die Daten für die Erfüllung vertraglicher oder gesetzlicher Pflichten nicht mehr erforderlich, werden diese regelmäßig und entsprechend den gesetzlichen Vorschriften für eine weitere Verarbeitung gesperrt oder gelöscht.
Das Recht auf Auskunft (Unterpunkt Art. 15 DSGVO)
Sie haben jederzeit das Recht eine Auskunft darüber zu erhalten, welche Kategorien und Informationen zu Ihren personenbezogenen Daten von uns zu welchem Zweck verarbeitet und wie lange und nach welchen Kriterien diese Daten gespeichert werden. Außerdem haben Sie das Recht zu erfahren welche Empfänger bzw. Kategorien von Empfängern Ihre Daten offengelegt worden sind oder noch offengelegt werden.
Neben dem Beschwerderecht bei der Aufsichtsbehörde und dem Informationsrecht über die Herkunft Ihrer Daten haben Sie das Recht auf Löschung, Berichtigung sowie das Recht auf Einschränkung für bzw. Widerspruchsrecht gegen eine Verarbeitung Ihrer personenbezogenen Daten.
Wir weisen hiermit darauf hin, dass die Bereitstellung von personenbezogenen Daten in bestimmten Fällen (z.B. Steuervorschriften) gesetzlich vorgeschrieben ist oder sich aus einer vertraglichen Regelungen (z.B. Angaben zum/des Vertragspartners) ergeben kann. Beispielsweise kann es für einen Vertragsabschluss erforderlich sein, dass die betroffene Person/der Vertragspartner seine personenbezogenen Daten zur Verfügung stellen muss, damit sein Anliegen überhaupt von uns bearbeitet werden kann. Eine Verpflichtung zur Bereitstellung von personenbezogenen Daten ergibt sich vor allem bei Vertragsabschlüssen.